➇ COL

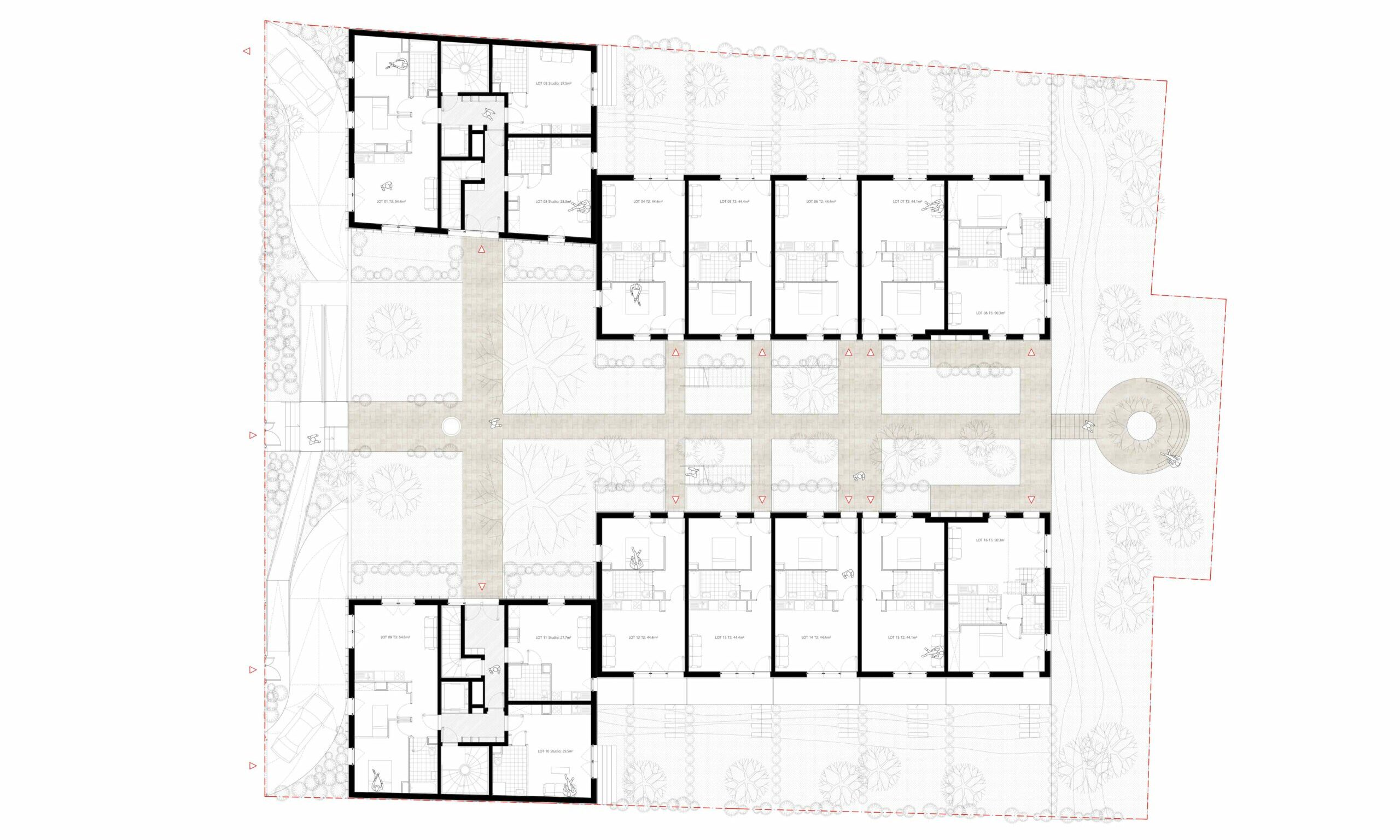
40 LOGEMENTS

Description

40 logements collectifs neuf en zone PPRI. Parking souterrain de 40 places.

Détails
Lieu:

Colombes (92700)

Architecte:

Atelier 9.81 en collaboration avec AAMA (phase PC)

MOA:

Pitch Immo

SDP:

2214m²